user

XConstruct 2023

By Struct4U
Structural design

Description

XConstruct is a user-friendly and modern toolbox for the structural engineer.

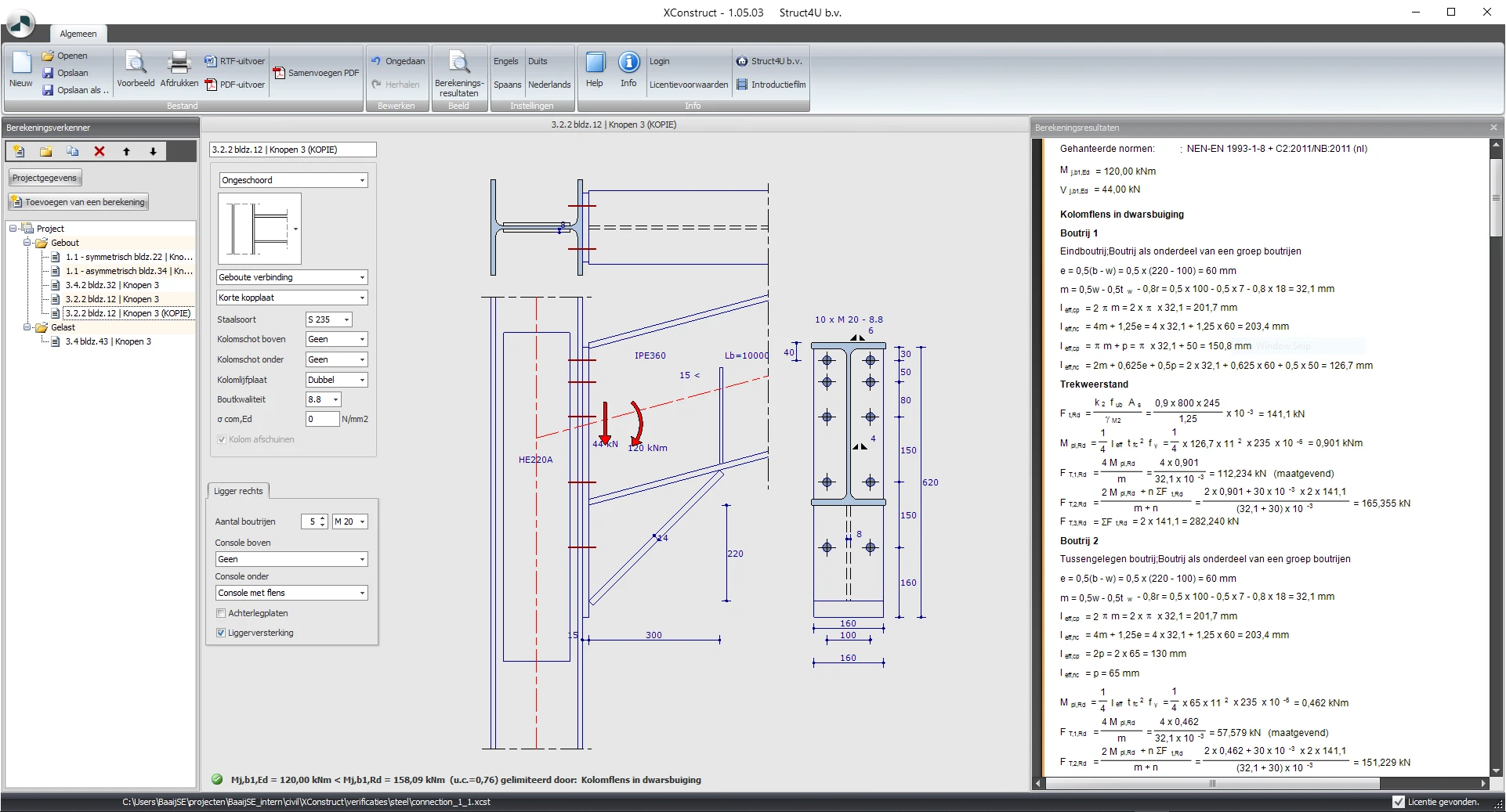
XConstruct is a user-friendly and modern toolbox that allows you to make your calculations quickly and very easily. You can add several calculations to your project. Naturally, you can move, copy and delete them. You will experience how easy that is. The powerful and modern user interface ensures fast input. For example, dimensions can be changed simply by clicking on the dimension lines. After each change, the calculation is started immediately. You can see the result of the calculation on the right-hand side.

Pay Per Use(PPU) 3.65 euro per hour. Check page for more pricing information. 

Is this recognizable to you as a structural engineer?

  1. Expensive licensing, fixed and high maintenance costs.
  2. Calculations that are not insightful.
  3. Costly separate modules that you don’t always use.
  4. Complicated user interface.
  5. Outdated software.
  6. Requests for new functionality that are not processed.
  7. 3D EEM calculations that take a very long time.

Struct4U provides the solution!

  1. ZERO investment! Low cost!
  2. 100% transparent calculations.
  3. No paying for separate modules.
  4. User-friendly user interface.
  5. Modern software.
  6. New version several times a year with lots of new functionality.
  7. Super fast calculation heart/solver with powerful mesher.

Specifications

Licence:
Commercial
Release Date:
2022-03-11
Provider:
Struct4U

Gallery